LEJLIGHED 26
Lejlighed 26 i Datcha har en af de bedste beliggenheder i Avoriaz. Tæt på byens centrum, men dog i et roligt kvarter. Lejligheden er beliggende på anden etage og er normeret til 6 personer, max 4 voksne + 2 børn. Der er en fantastisk udsigt fra den sydvendte stue og altan ud over bjergene. På samme etage ligger skirummet, hvorfra der er direkte adgang til pisten.
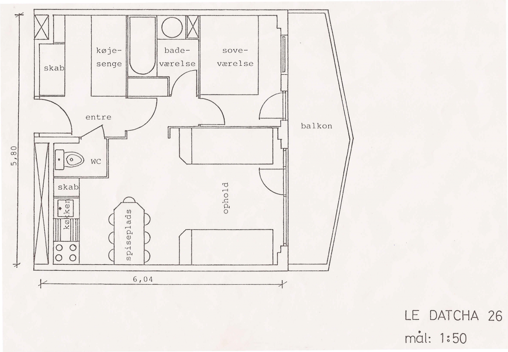
Lejligheden er udstyret efter skandinaviske standarder, blandt andet med rullemadrasser, danske dyner og puder. Den indeholder entre med køjesenge, toilet med håndvask, køkken/alrum med 2 sovepladser, separat soveværelse med 3/4 seng, badeværelse samt sydvendt altan.
- Køkkenet er udstyret med blandt andet opvaskemaskine, Combiovn, kaffemaskine samt diverse gryder og pander.
- Der er gratis trådløst fibernet i lejligheden.
- Husdyr ikke IKKE velkomne.
- Lejligheden er røgfri zone.
- I entreen er der et stativ til skistøvler, bortset fra entreen, er alle andre rum støvlefrie zoner.











